en-USel-GRes-ES
Menu

Τετραέρειστη

Εισαγωγή >
Ο σκελετός του κτιρίου
Η κατασκευή
Οπλισμός I
Οπλισμός II
Προμέτρηση και κοστολόγηση
Σχέδια εφαρμογής


Εισαγωγή
Δυνάμεις σεισμού και ανέμου
Προσομοιώματα-Επιλύσεις
Προσομοίωση πλακών με πεπερασμένα
Ολόσωμες πλάκες
Σεισμική Συμπεριφορά Πλαισίων
Παραρτήματα

Εισαγωγή
Υλικά
Δυσκαμψίες Δομικών Στοιχείων
Διαστασιολόγηση σε Κάμψη
Διαστασιολόγηση σε διάτμηση
Διαστασιολόγηση σε στρέψη
Συνάφεια και Αγκύρωση
Ικανοτικός Σχεδιασμός Σκελετού
Πρόβλημα Μονοαξονικής Κάμψης

3D απεικόνιση τετραέρειστης πλάκας

< project: slabs20>
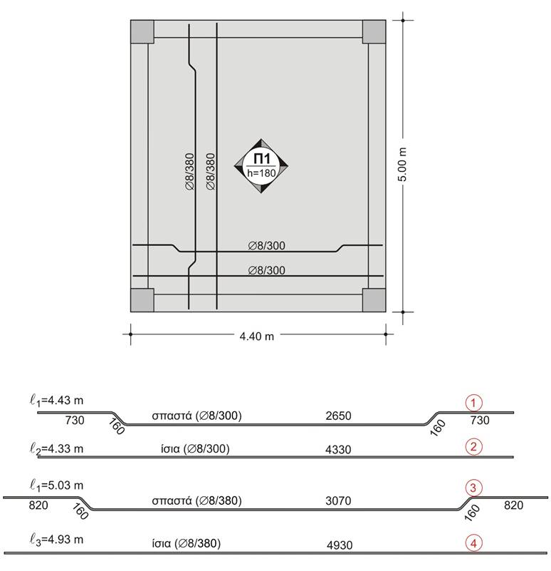
Η τετραέρειστη πλάκα Π1, πατάει στις τέσσερεις δοκούς.

 

Λειτουργία τετραέρειστης πλάκας

Η λειτουργία της τετραέρειστης πλάκας είναι παρόμοια με τη λειτουργία της αμφιέρειστης, μόνο που η λειτουργία αυτής είναι και προς τις δύο διευθύνσεις.

Οι κανόνες όπλισης είναι επίσης παρόμοιοι και προς τις δύο διευθύνσεις.

Ξυλότυπος σιδερά τετραέρειστης πλάκας

Η τετραέρειστη πλάκα, από άποψη λειτουργίας, ασφάλειας και οικονομικότητας,
είναι ασύγκριτα καλύτερη από την ισοδύναμη αμφιέρειστη.