en-USel-GRes-ES
Menu

HoloBIM Construct



Φιλικό περιβάλλον εργασίας με BIM διαδικασία.

-  Για απαιτητικούς επαγγελματίες:
• Αρχιτέκτονες, Κατασκευαστές
• Πολ. μηχανικούς, Εργολάβους
• Σχεδιαστές, Τεχνικούς
- Επαλήθευση αποτελεσμάτων μέσω 3D απεικονίσεων
- Δυνατότητα εξαγωγής του μοντέλου σε μορφή IFC - ΝΕΟ!

Υπολογίζει και δημιουργεί τις προμετρήσεις για:

• Σκυρόδεμα και οπλισμούς
• Θερμομόνωση 
• Τοίχοποιίες και τούβλα
• Πόρτες και παράθυρα 
• Σοβάδες
• Δάπεδα
• Κάγκελα
• Βιβλιοθήκες επίπλων/αντικειμένων - ΝΕΟ!

Το HoloBIM Construct, είναι ένα αυτόνομο λογισμικό για την αποδοτική μοντελοποίηση της κτιριακής πληροφορίας (Building Information Modeling). Εξασφαλίζει ότι το εικονικό μοντέλο του κτιρίου θα συνεργάζεται δυναμικά με τις προμετρήσεις και σχεδιάσεις κατά την πορεία της μελέτης εφαρμογής. Έτσι, οι ποσότητες των υλικών και εργασιών υπολογίζονται κατευθείαν από το κτιριακό μοντέλο.

Εχει Ταχύτατη περιγραφή του σκελετού και των άλλων δομικών στοιχείων (τοίχων, σενάζ, κουφωμάτων, επιχρισμάτων, δαπέδων, ντουλάπων) του κτιρίου με ευφυή και αυτοματοποιημένα, εργαλεία. Απευθύνεται σε όλους τους επαγγελματίες του χώρου της κατασκευής όπως σε μηχανικούς, κατασκευαστές, εργολάβους και προμηθευτές.

Βασικές δυνατότητες του HoloBIM Construct

• Λεπτομέρειες αρχιτεκτονικών στοιχείων
• Κατασκευαστικές λεπτομέρειες
• Αναλυτικές προμετρήσεις και υπολογισμός κόστους
• Βοηθάει στην παράδοση των σχεδίων 'Ως κατασκευάσθη'
• Περιβάλλον εικονικής πραγματικότητας για  εκπαίδευση στην μελέτη και κατασκευή
  HoloBIM Construct
        Video παρουσίαση 10' 


  HoloBIM tutorial video
       Video παρουσίαση 40' 


          

 

 


Δείγματα προμετρήσεων και σχεδίων

Αναλυτικά Χαρακτηριστικά




HoloBIM Περιγραφή Φορέα - Σχέδιο 2D και 3D

ΠΕΡΙΓΡΑΦΗ ΦΟΡΕΑ

Ο μηχανικός περιγράφει τον σκελετό και τα αρχιτεκτονικά στοιχεία στην φυσική τους μορφή, γραφικά ή με συντεταγμένες. Το αποτέλεσμα είναι σχέδιο 2D και 3D ταυτόχρονα. Με αυτό τον τρόπο εντοπίζονται και διορθώνονται αμέσως τα λάθη κατά την εισαγωγή.

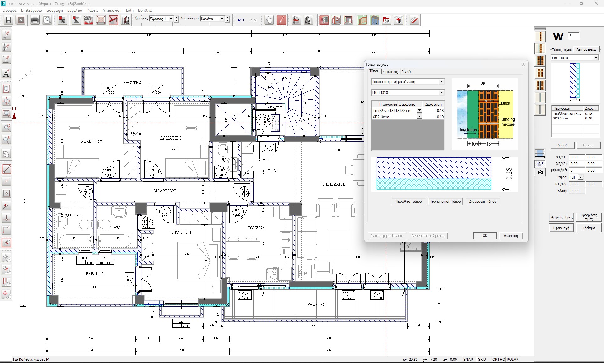
Διαχείριση Τοίχων - Προσαρμογή και Δημιουργία Νέων Τύπων

ΔΙΑΧΕΙΡIΣΗ ΤΟΙΧΩΝ

Το HoloBIM Construct περιέχει πάνω από 100 διαφορετικούς τύπους τοίχων, για κάθε περίπτωση κτιρίου και περιβάλλοντος. Ο μηχανικός μπορεί να τους τροποποιήσει ανάλογα με τις ανάγκες του κτιρίου, ή να δημιουργήσει έναν εντελώς νέο τύπο τοίχου, συνδυάζοντας στρώσεις υλικών.

Παραμετροποίηση Κουφωμάτων - Εξατομίκευση Ιδιοτήτων

ΒΙΒΛΙΟΘΗΚΗ/ΠΑΡΑΜΕΤΡΟΠΟΙΗΣΗ ΚΟΥΦΩΜΑΤΩΝ

Το HoloBIM Construct περιέχει μια εκτεταμένη βιβλιοθήκη ανοιγμάτων. Κάθε ιδιότητα του κουφώματος, για παράδειγμα το πλάτος του ανοίγματος ή το ύψος πρεκιού, μπορεί να τροποποιηθεί ανάλογα με τις ανάγκες της μελέτης.

Gross Beton - Μη Φέροντες Πλάκες

GROSS BETON

Έχουμε την δυνατότητα περιγραφής μη φερόντων πλακών από Gross Beton. Οι πλάκες αυτές προσμετρώνται αναλυτικά, για τον υπολογισμό του τελικού κόστους κατασκευής.

Περιγραφή Θερμομόνωσης - Προσαρμογή Υλικών

ΠΕΡΙΓΡΑΦΗ ΘΕΡΜΟΜΟΝΩΣΗΣ

Οι διαστάσεις των δομικών και αρχιτεκτονικών στοιχείων προσαρμόζονται αυτόματα κατά την εισαγωγή της θερμομόνωσης. Μπορούμε να επεξεργαστούμε την θερμομόνωση (υλικό, πάχος κτλ), σε επίπεδο κτιρίου, ορόφου, και μεμονωμένου δομικού στοιχείου.

HoloBIM Τεχνητή Νοημοσύνη - Ανίχνευση Τοίχων και Θερμομόνωσης

ΤΕΧΝΗΤΗ ΝΟΗΜΟΣΥΝΗ

Η γεωμετρία και η συνέχεια των χώρων ανιχνεύεται αυτόματα, οι τοίχοι προσαρμόζονται στο δομικό σκελετό, τα κουφώματα 'γνωρίζουν' την ακριβή θέση τους στο χώρο και η θερμομόνωση με τους σοβάδες αποτελούν φυσικές οντότητες του φορέα.

Ευφυής Σχεδίαση - Αυτόματη Προσαρμογή Τοίχων

ΕΥΦΥΗΣ ΣΧΕΔΙΑΣΗ

Ως δυναμικά στοιχεία, οι τοίχοι αναγνωρίζουν το σημείο τομής τους με κάποιον άλλο τοίχο, και προσαρμόζουν αυτόματα την λεπτομέρεια του σημείου ένωσής τους. Όλα τα δομικά στοιχεία προσαρμόζονται αυτόματα σε οποιαδήποτε τροποποίηση της γεωμετρίας των τοίχων.

Εφαρμογή Σοβάδων - Αυτόματη Ενημέρωση Προμετρήσεων

ΕΦΑΡΜΟΓΗ ΣΟΒΑΔΩΝ

Γνωρίζοντας αναλυτικά την γεωμετρία κάθε επιφάνειας, το HoloBIM μπορεί να δημιουργήσει το επίχρισμα του κτιρίου μέσα σε λίγα δευτερόλεπτα. Όλες οι προμετρήσεις ενημερώνονται αυτόματα με κάθε τροποποίηση του σοβά του κτιρίου.

Νέες Βιβλιοθήκες σε 2D και 3D

ΝΕΟ! ΝΕΕΣ ΒΙΒΛΙΟΘΗΚΕΣ 2D

Εισάγετε εύκολα 2D και 3D βιβλιοθήκες, αλλάζοντας την κλίμακα και την περιστροφή τους στους άξονες Χ, Υ και Ζ. Έχετε τη δυνατότητα να εξάγετε 3D βιβλιοθήκες στο Kinesis και να δημιουργήσετε τα δικά σας 3D στοιχεία, προσαρμόζοντας πλήρως το σχέδιό σας.

Νέες Βιβλιοθήκες σε 2D και 3D

ΝΕΟ! ΝΕΕΣ ΒΙΒΛΙΟΘΗΚΕΣ 3D

Εισάγετε εύκολα 2D και 3D βιβλιοθήκες, αλλάζοντας την κλίμακα και την περιστροφή τους στους άξονες Χ, Υ και Ζ. Έχετε τη δυνατότητα να εξάγετε 3D βιβλιοθήκες στο Kinesis και να δημιουργήσετε τα δικά σας 3D στοιχεία, προσαρμόζοντας πλήρως το σχέδιό σας.

3D Στοιχεία

ΝΕΟ! ΠΑΡΑΜΕΤΡΟΠΟΙΗΣΙΜΑ 3D ΣΤΟΙΧΕΙΑ

Εισάγετε εύκολα 3D στοιχεία — ορθογωνικά ή/και κυκλικά, οριζόντια ή κατακόρυφα — προσομοιώνοντας ποικίλα αρχιτεκτονικά στοιχεία

Φάσεις Κατασκευής - Διαδοχικά Στάδια Κατασκευής

ΦΑΣΕΙΣ ΚΑΤΑΣΚΕΥΗΣ

Η περιγραφή του κτιρίου χωρίζεται σε 6 φάσεις κατασκευής: Σκελετός, γρο-μπετον, τούβλα, κάσες, επιχρίσματα, τελική. Η απεικόνιση κάθε φάσης γίνεται πολύ εύκολα με την αντίστοιχη επιλογή από το μενού 'εργαλεία'.

Διαστάσεις και Τομές - Αυτόματη Δημιουργία Τομών

ΔΙΑΣΤΑΣΕΙΣ ΚΑΙ ΤΟΜΕΣ

Το HoloBIM δημιουργεί όλες τις τομές αυτόματα τόσο σε 2D όσο και σε 3D. Ο Μηχανικός δίνει λογικές εντολές για την δημιουργία των υψομέτρων και των διαστάσεων τόσο στις τομές όσο και στις κατόψεις.


Αναλυτικές Προμετρήσεις - Υπολογισμός Υλικών

ΑΝΑΛΥΤΙΚΕΣ ΠΡΟΜΕΤΡΗΣΕΙΣ

Όλες οι ποσότητες υλικών και εργασιών υπολογίζονται αναλυτικά ανά όροφο και ανά κατηγορία δομικών στοιχείων.

Εκτίμηση Κόστους - Ανάλυση Κατασκευαστικού Κόστους

ΕΚΤΙΜΗΣΗ ΚΟΣΤΟΥΣ

Με την βοήθεια των αναλυτικών προμετρήσεων και τον καθορισμό των τιμών μονάδων κάθε υλικού και εργασίας μπορούμε να έχουμε αναλυτικά τον υπολογισμό κόστους της κατασκευής.

Διαχείριση Σχεδίων - Τοποθέτηση Σχεδίων CAD και 3D Απόψεων

ΔΙΑΧΕΙΡΙΣΗ ΣΧΕΔΙΩΝ

Ο Μηχανικός με απλές κινήσεις τοποθετεί τα σχέδιά του μέσα στο χαρτί. Πέραν των 2D ξυλοτύπων και τομών της μελέτης, μπορεί να τοποθετήσει και τις 3D απόψεις της μελέτης, αλλά και οποιαδήποτε άλλα σχέδια CAD ή φωτογραφίες.